No.20260449

西宮市花の峯新築戸建

最終更新日:2026/04/27

  • マリンホーム施工

HOMES物件情報

物件基本情報

所在地
西宮市花の峯
交通
JR「生瀬駅」より 徒歩21分
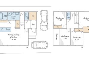
間取り
4LDK
構造
木造
建物面積
106.81m2
土地面積
124.89m2
築年月
2025年6月(築新築)
階数
2階建
方位
南向き
駐車場
土地権利
所有権
都市計画
市街化区域
用途地域
第1種低層住居専用地域
接道状況
北側幅員約4.0mに接道
建ぺい率
50%
容積率
100%
現況
空家
小学校区
生瀬小学校
中学校区
塩瀬中学校

費用について

価格
2,980万円

【未公開物件も多数】
掲載以外のお探しもお任せください

秋山グループが把握している物件情報は、今この画面で見えているものだけではありません。
地域密着だからこそ入ってくる最新の売り出し情報や、掲載が追いついていない新着物件も豊富にございます。
「このあたりのエリアで、こんな家はない?」といったご相談も大歓迎です!

お問い合わせ

お電話でのお問い合わせ
(受付時間 10:00~19:00、不定休)

TEL.0797-80-8939

メールでのお問い合わせ
(24時間365日受付)

お問い合わせフォーム

LINEでのお問い合わせ
最新物件&お役立ち情報
公式LINEで配信

友達を追加する

CONTACT