「将来、子どもが増えるかもしれない。」「子どもの成長に合わせた間取りにしたいけど、イメージが湧かない。」といった悩みを抱えるママやパパは少なくありません。
子どもたちは数年で心と体が大きく成長し、各時期に応じて家での過ごし方も変わります。
だからこそ、10年後も快適に暮らせる家づくりが必要です。
この記事では、子どもの成長に合わせた間取りについて具体的な工夫を5つ紹介します。
さらに、実際に子育て世帯が取り入れた間取りの事例を紹介していくので、より具体的なイメージが湧いてきます。
子育て中で、間取り設計に悩みを抱えている方はぜひ参考にしてみてくださいね。
なぜ「将来を見据えた間取り設計」が必要なの?
家づくりを考える時どうしても「今の生活にあっているかどうか」を中心に考えてしまいます。
でも、子どもは数年であっという間に成長し、それに伴って家族のライフスタイルも変化します。
今は快適に感じている間取りでも、数年後には「使い勝手が悪い。」と感じてしまうことはよくあります。
そうならないためにも「将来を見据えた間取り設計」を意識することが大切です。
具体的な間取りの工夫の前に、なぜ将来を考えることが必要なのか一緒に整理していきましょう。
必要性について十分理解することで、よりあなたの家族にぴったりな間取りが見えてくるはずです。
【子どもの成長で求められる空間が変わる】
幼児期は遊ぶスペースの確保が必要だったのが、学童期は学習スペース、思春期以降はプライベート空間と子どもたちにとって必要な空間は大きく変化します。
数年単位で子どもたちのライフスタイルが大きく変わるので、柔軟に対応できる間取りが求められます。
【柔軟に対応できる家=子育てしやすい家になる】
共働き世帯の多い現代にとって、子育てしやすい家は子育てと仕事を両立させる上で欠かせません。
「将来こうなるかも」と想像し、収納や空間に余白を持った間取り設計をすることで、快適な暮らしになり、子育てにも余裕が生まれます。
【住まいの活用に「正解」はない】
家族構成や働き方も数年単位で変化します。子どもの成長とともにいずれは夫婦2人だけの生活になることも。
この部屋は「子ども部屋」この部屋は「書斎」とはじめから決めるのではなく、部屋の役割を変化させられる作りにすることで、長く快適に住むことができます。
【将来、リフォームは手間とコストがかかる】
「必要になったら、部屋を増やしたらいい!」そう思われる方も多いでしょう。しかし、リフォームには時間と労力がかかります。
さらに、建築費も高騰しているので、将来的なリフォームは手間とコスト面から考えてもおすすめできません。
そのため、はじめから将来を意識した間取り設計が重要です。
年齢別!子どもの成長に合わせた住まいの工夫
子どもの年齢によって家での過ごし方が大きく変わってくるので、各年齢でどんな工夫が必要なのかみていきましょう。
幼児期:親子で過ごす空間を大切に
特に0〜3歳時期は親子で過ごす時間が長く、子どもの過ごし方は遊び中心でママやパパと遊ぶことも多いです。
また、小学生くらいまでは危険な行動も多いので、ママやパパが見守れる環境が快適に過ごすためには欠かせません。
子育てがはじまると、おもちゃやベビー用品といった荷物が増えるので、収納を広めにとっておく必要もあります。
学童期:遊び×学びを楽しめる設計に
小学生以降になると、遊ぶ環境だけでなく学習する環境も必要になります。低学年ごろは親のサポートが欠かせないため、そばで見守りやすい間取りがあると安心です。
高学年になると1人で集中できる学習環境を作ってあげることが大切です。
また、友達との時間や1人で過ごす時間が増えがちなので、家の中で家族が集まれる場所があるとコミュニケーションを取ることができるでしょう。
思春期以降:プライバシーを意識しながら、家族とコミュニケーションが取れる設計
思春期以降になるとプライバシーを意識しはじめます。
親との距離を取るようになるので、プライバシーを確保できる環境がありながら、1日のどこかで顔を合わせられるようにすることが大切です。
子どもの気持ちを尊重しながら、親として子どもの様子を把握しておくといったどちらも叶えられる間取りがいいでしょう。
家族の変化に柔軟に対応できる!具体的な間取りアイディア5選
どんな間取りが、子どもの成長に合わせて柔軟に対応できるのか具体例を紹介していきます。
広いLDK
キッチンからリビングの様子が伺える設計にしておくことで、幼少期は家事をしながら子どもを見守ることができます。
共働きで忙しい中でも、子どもとのコミュニケーションが取りやすく、使い勝手のよい空間になるでしょう。
また、広いリビングは思春期以降、親との距離を保ちながらも家族で快適に過ごすことができるものになります。
スタディスペース
最近は、リビング内にスタディスペースを確保する家庭が増えています。リビング内にあることで、親が学習サポートしやすく、学習を習慣化しやすいのが特徴です。
また、スタディスペースは子どもの学習だけでなく、親の在宅ワークの場としても有効活用できます。
子ども部屋
子ども部屋は将来、子どもが増えることを前提に「仕切れる工夫」が必要です。
年が離れたきょうだい、異性のきょうだいでも快適に使えるように様々な仕切り方があります。
(子ども部屋を仕切る方法)
・壁を作れるようにあらかじめ設計しておく
・カーテンをつけられるようにしておく
・家具で仕切れるように部屋を広めに作る
部屋を仕切るにあたってはドアが2つ以上必要だったり、エアコンやコンセントの位置も考える必要があるので気をつけましょう。
収納の変化に対応できる余白
幼児期はおもちゃが増えがちですが、学童期以降になるとおもちゃではなく、学用品やスポーツ用品が増えていきます。
あらかじめ、子どものものをどこに収納するのか決め、収納を広めに作っておくことが大切です。
収納にゆとりがあることで、家族で共有するスペースが散らからず、掃除の手間も省けるでしょう。
▼関連記事はこちら
子育てしやすい家ってどんな間取り?実例から学ぶ、おすすめレイアウト10選と後悔する間取り5選
実際のご家庭の間取りを紹介
実際にどのような間取りにされたか紹介していきます。
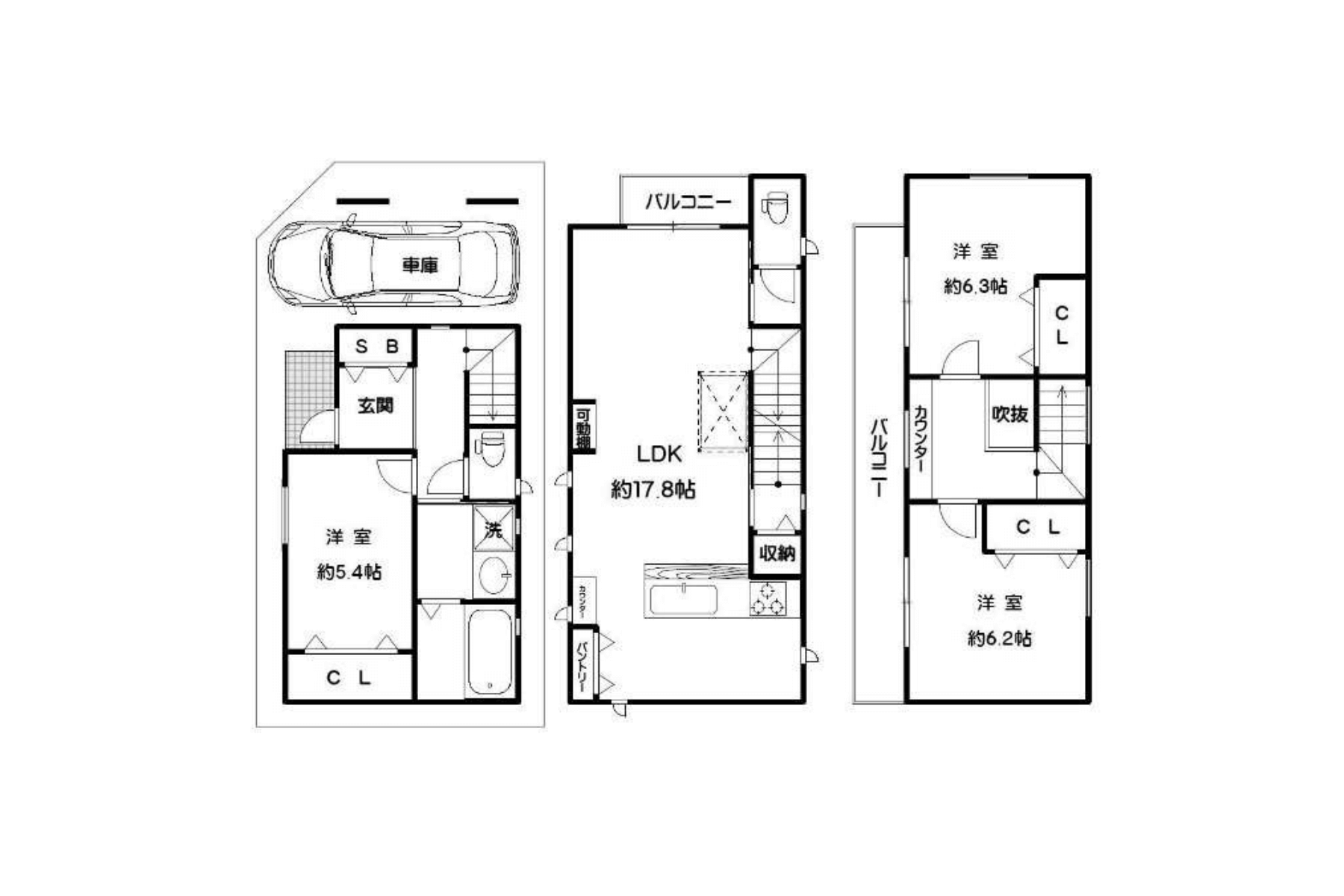
小学生2人(男女)と30代ご夫婦の新築戸建
ご主人の帰宅時間が遅くなることも考えて、1階に仕事部屋を設けています。
3階には父・息子、母・娘で分けた部屋があり、生活リズムや性別に合わせた暮らしやすい間取りになっています。
幼児1人と30代ご夫婦の注文住宅
玄関横に洗面所を配置し、帰宅後すぐに手洗いができるように。
また、家事をしながら子どもを見守れるようにリビング横に3帖の畳スペースを設けています。
さらに、2階の洋室は将来、子どもが増えても良いようにパーテーションで2部屋に仕切れるようにされています。
中学生1人と40代ご夫婦の中古住宅
毎日の洗濯を干す負担を減らすため、キッチン横から勝手口を通じてつながる場所にサンルームを設置しています。
外に出ずに洗濯物を干せるため、家事の手間が大幅に削減されています。
幼児1人と30代ママの中古マンション
キッチン、洗面所、浴室を近い間取りにすることで家事をしながら子どものお世話ができるように工夫されています。
また、浴室乾燥機があることで、洗濯物がすぐに乾き、家事の時短にもつながっています。
まとめ|家族の10年後を想像した間取り設計を
子どもの成長とともに暮らしの中で求めるものはどんどん変化していきます。
だからこそ、住みやすい家には“柔軟な間取り設計”が必要です。
もちろん、10年後の生活まで想像しての家づくりは簡単ではありません。
「目の前の子育てで大変だから、将来のことなんてわからない。」そう思うことでしょう。
でも、今のちょっとした努力が10年後の未来を大きく変え、生活を楽にしてくれます。
また、将来だけでなく、今の生活もできるだけ快適にしたいですよね。
将来もずっと、家族で心地よい暮らしをするために、ぜひ今から将来を意識した間取りについて考えてみてくださいね。
▼関連記事はこちら

